RETROLINER RL 340 Back & Snack

Optisch attraktiver und funktioneller Verkaufs- und Promotionanhänger in RETRO-Optik. 

Die 3-Klappen Pavillonoptik mit gerundeten Ecken machen den RETROLINER Grillwagen zu einer einizigartigen mobilen Verkaufs- und Promotionlösung. Hergestellt wird der RETROLINER ausschließlich in Deutschland – „Made in Germany“ – seit 1975. Langjährige Fahrzeugbauerfahrung und tausende zufriedene Kunden beweisen Solidität, Funktionalität und Langlebigkeit der mobilen Verkaufslösungen von GAMO.

Die RETROLINER RL 340 BACK-SNACK-BAR eignet sich ideal für den Verkauf von Backwaren, Plunder, Süßen Stückchen und Kuchen. Dank der Möglichkeit Zusatzgeräte aufzustellen machen Sie aus Ihrer mobilen Filiale problemlos ein Café mit z.B. Tortenverkauf.

RETROLINER RL 340 Back & Snack

Für folgende Produktkategorien geeignet

Produktkategorie Sonstiges

Mehr Informationen

Ausstattung
Strom&Beleuchtung
Techn. Daten
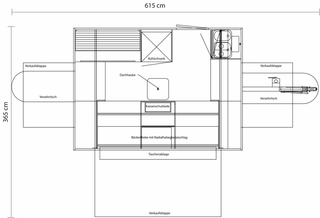
Grundriss
Video
Ausstattung

Ausstattung

  • Geräumige Radialglasverkaufstheke mit Platz für 6 Bäcker-Normbleche mit darunterliegendem Vorratsbereich für weitere 6 Bleche
  • Radial-Thekenverglasung mit Hebeglasfunktion zum einfachsten Bestücken und Säubern der Verkaufskühltheke
  • Hochwertiger Designer-Glastürkühlschrank mit verstellbaren Zwischenrosten – ca. 330 Liter
  • Großzügiges rücksetitges Raumangebot für 3 Flechtkörbe, rückseitig für Kleinbrot
  • Praktische Kassenschublade mit Druckknopfverschluss
  • 2 variabel einsetzbare Verzehrtische an Bug und Heck, einfach und bequem im Auf- und Abbau
  • Hygienebereich mit Doppelwaschbecken für Heiss- und Kaltwasser

Zubehör

  • beleuchtetes Dachdisplay
  • Wind- und Wetterschutz, Schiebescheiben (Echtglas) an Bug- und Heck
  • Fahrzeugbeklebung nach Kundenwunsch
Strom&Beleuchtung

Stromversorgung

  • 230 Volt Elektro Grundinstallation nach VDE 0100

Beleuchtung (optional wählbar)

  • LED-Beleuchtung mit verstellbaren Strahlern
  • Beleuchtung mit mit Langfeldleuchten (Leuchtstoffröhren)
  • Gasentladungsstrahler mit verschiedenen Lichtfiltern
Techn. Daten
Verkaufsaufbau
  • langlebiges GFK-Polyester außeninnen mit GELCOAT-OberflächenvergütungAlu Einfass- und Rahmenprofile, pulverbeschichtetIsolation durch hochwertigen PU-Hartschaum3 Verkaufsklappen in Fahrtrichtung rechts sowie Heck- und Bugklappe. Am Bug und Heck können zwei Verzehrtische flexibel angebracht werden.

Masse & Gewicht

Masse innen (LxBxH) in cm: ca. 334 x 240 x 231
Masse aussen (LxBxH) in cm: ca. 475 x 252 x 290 fahrbereit
Aufstellmass: 615 x 365 x 290 (betriebsbereit mit geöffneter Verkaufsklappe)
Gesamtgewicht: 1.600 kg (ZGG)
Zuladung: ca. 100 kg
Grundriss
RETROLINER RL 340 Back & Snack
Video
Diese Webseite verwendet Cookies. Durch die Nutzung der Webseite stimmen Sie der Verwendung von Cookies zu. Datenschutzinformationen