RETROLINER RL 340 Bottle-Bar

Mobiler Flaschenverkauf ist im Trend und hat sich auf den Festveranstaltungen etabliert.

Als Promotionlösung für die Getränkeindustrie ist die RL 340 Bottle-Bar durch die auffallende Form ein echt kultiger Hingucker mit hohem Aufmerksamkeitswert. Die RETROLINER RL 340 Bottle Bar ist in unterschiedlichen Standart Farbvarianten lieferbar und für den Verkauf und das Merchandising von Flaschenware ausgelegt.

Der Werbeeffekt auf Veranstaltungen aller Art ist enorm, die Kosten hierfür gering.

Die RETROLINER Bottle-Bar RL 340 eignet sich ideal für den Verkauf von Bier, Wein, Limonaden, Cocktails, Fruchsäften

RETROLINER RL 340 Bottle-Bar

Für folgende Produktkategorien geeignet

Produktkategorie Drinks

Mehr Informationen

Ausstattung
Strom & Beleuchtung
Techn. Daten
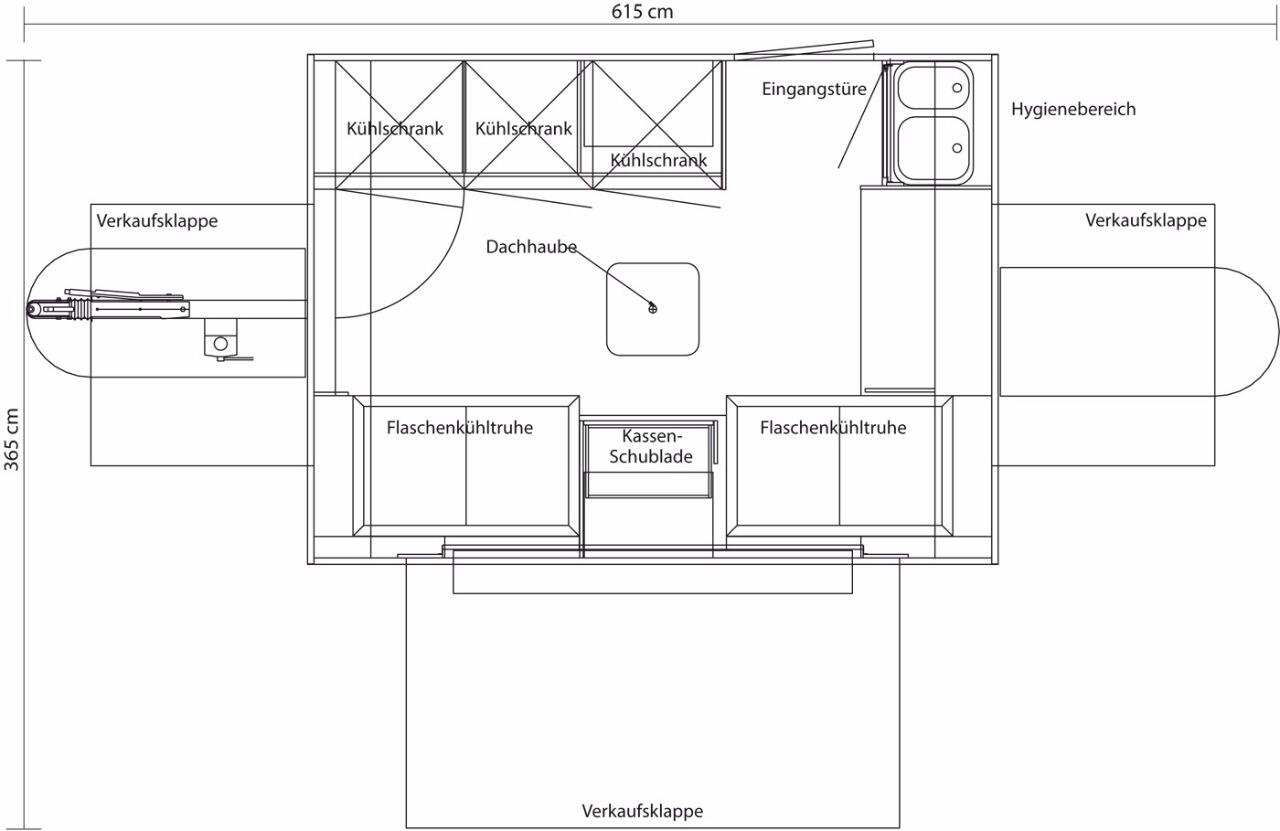
Grundriss
Ausstattung

Ausstattung

  • Komplettausstattung mit 3 seitiger Universal-Verkaufstheke in attraktiver Dekorzusammenstellung
  • 3 Stück hochwertige Designer-Glastürkühlschrank “ Liebherr“ mit verstellbaren Zwischenrosten. ca. 330 Liter
  • 2 Stück Getränkekühltruhen mit Schiebedeckel kundenseitig in Verkaufstehke integriert, ca. 350 Liter
  • Beleuchtung mit NEON-Röhrensystem umlaufend inkl. Hinterleuchtung des innenliegenden Werbedisplays
  • Rückseitiger Spül-/Hygienebereich mit Edelstahl-Doppelspülbecken und fliessend Heisswasser (Untertischboiler)
  • Wandhängestauschrank mit Drehtüre mit Push/Lock- Verschluss

Zubehör

  • beleuchtetes Dachdisplay
  • Wind- und Wetterschutz, Schiebescheiben (Echtglas) an Bug- und Heck
  • Fahrzeugbeklebung nach Kundenwunsch
Strom & Beleuchtung

Stromversorgung

  • 230 Volt Elektro Grundinstallation nach VDE 0100

Beleuchtung

  • Beleuchtung mit mit Langfeldleuchten (Leuchtstoffröhren)
Techn. Daten

Verkaufsaufbau

  • langlebiges GFK-Polyester außeninnen mit GELCOAT-OberflächenvergütungAlu Einfass- und Rahmenprofile, pulverbeschichtetIsolation durch hochwertigen PU-Hartschaum3 Verkaufsklappen – eine in Fahrtrichtung rechts sowie Heck- und Bugklappe. Am Bug und Heck können zwei Verzehrtische flexibel angebracht werden.

Masse & Gewicht

Masse innen (LxBxH) in cm: ca. 334 x 240 x 231
Masse aussen (LxBxH) in cm: ca. 485 x 252 x 290 fahrbereit
Aufstellmass: 615 x 365 x 290 (betriebsbereit mit geöffneter Verkaufsklappe)
Gesamtgewicht: 1.600 kg (ZGG)
Zuladung: ca. 300 kg
Grundriss
RETROLINER RL 340 Bottle-Bar
Diese Webseite verwendet Cookies. Durch die Nutzung der Webseite stimmen Sie der Verwendung von Cookies zu. Datenschutzinformationen