RETROLINER RL 340 Fresh

Verkaufsanhänger mit Kühltheke

Optisch attraktiver und funktioneller Kühlthekenanhänger in RETRO-Optik. Die 3-Klappen Pavillonoptik mit gerundeten Ecken machen den RETROLINER zum echten Hingucker. Der RETROLINER wird ausschließlich in Deutschland gebaut.

Langjähirge Fahrzeugbauerfahrung und tausende zufriedene Kunden beweisen Solidität, Funktionalität und Langlebigkeit dieser mobilen Verkaufslösungen.

Der RETROLINER FRESH zeichnet sich durch seine leistungsfähige, geräumige Kühltheke sowie das attraktive und unverwechselbare Erscheinungsbild aus – Made in Germany – seit 1975.

Der RETROLINER RL 340 FRESH Verkaufsanhänger mit Kühltheke eignet sich ideal für den Verkauf von Fleisch, Wurst, Fisch, Käse, Süssem oder anderen Produkten die eine leistungsstarke Kühltheke erfordern.

RETROLINER RL 340 Fresh

Für folgende Produktkategorien geeignet

Produktkategorie Ice cold
Produkkategorie Vegan

Mehr Informationen

Ausstattung
Strom&Beleuchtung
Techn. Daten
Grundriss
Video
Ausstattung

Ausstattung

  • Kundenseitige KOMPAKT AIR Verkaufskühltheke
  • komplett mit Edelstahl- Auslageblechen. Auslage 240 x 75 cm
  • Leistungsfähige und schnelle Kälteleistung dank umluftunterstützter Verdampferkühlung mit Schwellkältesystem und Kontaktkälte.
  • Radial-Thekenverglasung mit Hebeglasfunktion zum einfachsten Bestücken und Säubern der Verkaufskühltheke
  • Spezial-Gasentladungsbeleuchtung oberhalb der Verkaufstheke zur optimalen Präsentation der Ware
  • 1 Stück hochwertiger Designer-Kühlschrank «Liebherr» ca. 330 Liter mit verstellbaren Zwischenrosten befindet sich rückseitig
  • Bug- und heckseitige Universaltheke, hervorragend für die Platzierung von Aufstellgeräten

Zubehör

  • beleuchtetes Dachdisplay
  • Wind- und Wetterschutz, Schiebescheiben (Echtglas) an Bug- und Heck
  • Fahrzeugbeklebung nach Kundenwunsch
Strom&Beleuchtung

Stromversorgung

  • 230 Volt Elektro Grundinstallation nach VDE 0100

Beleuchtung (optional wählbar)

  • Beleuchtung mit mit Langfeldleuchten (Leuchtstoffröhren) hinter Innendisplay
  • Gasentladungsstrahler mit Lichtfilter
Techn. Daten

Verkaufsaufbau

  • langlebiges GFK-Polyester außen
  • innen mit GELCOAT-Oberflächenvergütung
  • Alu Einfass- und Rahmenprofile, pulverbeschichtet
  • Isolation durch hochwertigen PU-Hartschaum
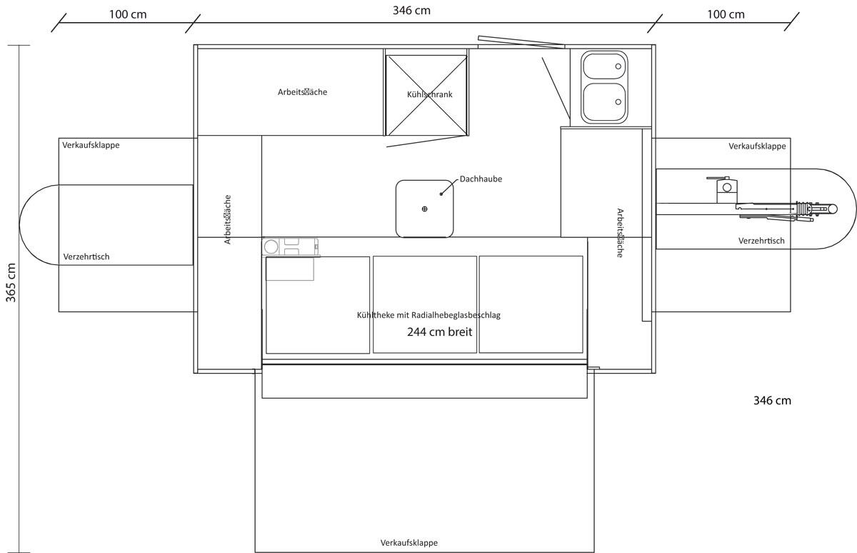
  • 3 Verkaufsklappen – eine in Fahrtrichtung rechts sowie Heck- und Bugklappe. Am Bug und Heck können zwei Verzehrtische flexibel angebracht werden.

Masse & Gewicht

Masse innen (LxBxH) in cm: ca. 334 x 240 x 231
Masse aussen (LxBxH) in cm: ca. 485 x 252 x 290 fahrbereit
Aufstellmass: 615 x 365 x 290 (betriebsbereit mit geöffneter Verkaufsklappe)
Gesamtgewicht: 1.600 kg (ZGG)
Zuladung: ca. 200 kg
Grundriss
RETROLINER RL 340 Fresh
Video
Diese Webseite verwendet Cookies. Durch die Nutzung der Webseite stimmen Sie der Verwendung von Cookies zu. Datenschutzinformationen