RETROLINER RL 340 Asia-Wok

Asia-Food ist «In» und mehr als nur eine Trenderscheinung!

Die Zubereitung von Speisen in einem Wok ist nicht nur für schnelle und fettarme Rezepte, sondern auch für besonders gesundes Kochen und Garen bekannt. Im Wok werden die Zutaten bei verhältnismäßig hoher Hitze für eine kurze Zeit angebraten. Durch das kurze Garen entwickelt sich ein besonderes Aroma und die wichtigsten Nährstoffe bleiben erhalten.

Der RETROLINER RL 340 ASIA-WOK verbindet professionelle und durchdachte Inneneinrichtung mit optisch attraktiver und auffallender Aussenwirkung. Der RL 340 ASIA-WOK ist Imageträger für bestehende ASIA- Restaurants – bei Veranstaltungen fungiert der Verkaufsanhnänger als mobile Filiale und eignet sich zudem ideal als zweites Standbein und professionelles „WOK-Restaurant auf Rädern“ für einen festen Standplatz.

Langjährige Fahrzeugbauerfahrung und tausende zufriedene Kunden beweisen Solidität, Funktionalität und Langlebigkeit dieser mobilen Verkaufslösungen.

Der RETROLINER Asia-WOK RL 340 eignet sich ideal für den Verkauf von asiatischen Spezialitäten mit gegrillten Gerichten, Wok-Gemüse und Reis.

RETROLINER RL 340 Asia-Wok

Für folgende Produktkategorien geeignet

Produktkategorie Imbiss

Mehr Informationen

Ausstattung
Strom & Beleuchtung
Techn. Daten
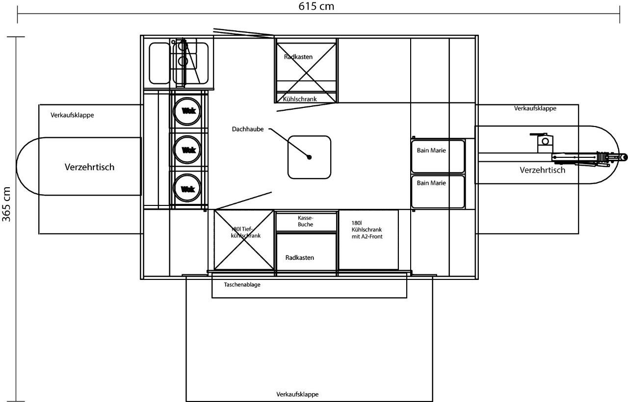
Grundriss
Video
Ausstattung

Elektro-Variante

  • 3 Stück Elektro WOK Stationen à 3,5 KW (Induktion)
  • 2 Stück Warmwasserbad (Bainmarie) elektrobeheizt in 1/1 Gastronorm
  • 1 Stück Reiskocher
  • 1 Stück Edelstahl Ablufthaube in Kaminform mit Beleuchtung
  • 2 Stück hochwertige Designer-Kühlschränke mit Edelstahlfront, ca. 180 Liter mit verstellbaren Zwischenrosten (Unterbau)
  • 1 Stück Frontsaladette/Zutatenkühlung mit Unterbaukühlung

Ausstattung GAS-Variante

  • 2 Stück hochleistungs GAS-WOK Stationen
  • 1 Stück Warmwasserbad (Bainmarie) gasbeheizt in 1/1 Gastronorm
  • 1 Stück Friteuse gasbeheizt
  • 1 Stück Reiskocher
  • 1 Stück Edelstahl Ablufthaube mit Beleuchtung
  • 1 Stück hochwertiger Designer-Kühlschrank mit Edelstahlfront, ca. 180 Liter mit verstellbaren Zwischenrosten (Unterbau)
  • 1 Stück Frontsaladette/Zutatenkühlung mit Unterbaukühlung

Zubehör

  • beleuchtetes Dachdisplay
  • Wind- und Wetterschutz, Schiebescheiben (Echtglas) an Bug- und Heck
  • Fahrzeugbeklebung nach Kundenwunsch
Strom & Beleuchtung

Stromversorgung

  • 230 Volt Elektro Grundinstallation nach VDE 0100

Beleuchtung (optional wählbar)

  • LED-Beleuchtung mit verstellbaren Strahlern
  • Beleuchtung mit Langfeldleuchten (Leuchtstoffröhren)
  • Gasentladungsstrahler mit verschiedenen Lichtfiltern
Techn. Daten

Technische Daten

  • langlebiges GFK-Polyester außen
  • innen mit GELCOAT-Oberflächenvergütung
  • Alu Einfass- und Rahmenprofile, pulverbeschichtet
  • Isolation durch hochwertigen PU-Hartschaum
  • 3 Verkaufsklappen – davon eine in Fahrtrichtung rechts, sowie Heck- und Bugklappe. Am Bug und Heck können zwei Verzehrtische flexibel angebracht werden.
Masse innen (LxBxH) in cm: ca. 334 x 240 x 231
Masse aussen (LxBxH) in cm: ca. 485/505 x 250 x 295/303 fahrbereit
Aufstellmass: ca. 615/635 x 365 x 295/303 (betriebsbereit mit geöffneter Verkaufsklappe)
Gesamtgewicht: 1.600 kg (ZGG)
Zuladung: ca. 200 kg
Grundriss
RETROLINER RL 290 Mini-Snack „Universal“
Video
Diese Webseite verwendet Cookies. Durch die Nutzung der Webseite stimmen Sie der Verwendung von Cookies zu. Datenschutzinformationen