RETROLINER RL 340 Fish'n'Chips

Fisch ist gesund. Fisch ist lecker. Fisch-Snacks liegen im Trend und boomen an jeder Ecke. 

Der RETROLINER RL 340 FISH’N’CHIPS verbindet professionelle und durchdachte Inneneinrichtung mit optisch attraktiver und auffallender Aussenwirkung. Dieser Verkaufswagen ist eine komplett ausgestattete und professionelle Snackeinheit und bietet eine Vielzahl von Einsatzmöglichkeiten. Ideal geeignet für den mobilen Verkauf, auf Eventveranstaltungen, als stationäre Einheit im Touristengebiet oder auf dem Wochenmarkt. Ausgestattet mit einer leistungsfähigen Kühltheke für frische Fischprodukte, die sich der Kunde zum Gericht aussuchen und bestellen kann, wird das Endprodukt entweder frittiert oder auf der integrierten Bratplatte gegart. Backfisch, Nudeln/Reis oder Beilagen können in der integrierten Bain-Marie heiß gehalten werden. Salate und Fischbrötchen finden in der kundenseitigen Kühltheke ihren Platz.

Der Werbeeffekt auf Veranstaltungen aller Art ist enorm, die Kosten hierfür gering. Der RETROLINER RL 340 FISH’N’CHIPS zeichnet sich durch die hochwertige Gastro-Geräte-Ausstattung und sein einzigartiges Erscheinungsbild aus.

Der RETROLINER Imbisswagen eignet sich ideal für den Verkauf von Frittiergut, heißem oder kaltem Fisch, Salaten, Pommes uvm.

RETROLINER RL 340 Fish'n'Chips

Für folgende Produktkategorien geeignet

Produktkategorie Imbiss
Produkkategorie Vegan

Mehr Informationen

Ausstattung
Strom & Beleuchtung
Techn. Daten
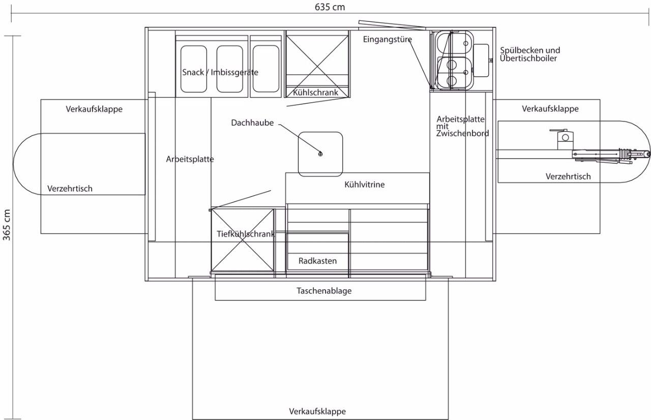
Grundriss
Video
Ausstattung

Ausstattung

  • 1 Stück Gasfriteuse 1 x 8 Liter
  • 1 Stück Warmwasserbad (Bain-Marie) gasbeheizt in 1/1 Gastronorm
  • 1 Stück Bratplatte gasbeheitzt
  • 1 Stück Edelstahl Ablufthaube mit Beleuchtung
  • 1 Stück leistungsfähige Kühlvitrine kundenseitig eingebaut mit Unterbaukühlung zur Bevorratung
  • 1 Stück hochwertiger Designer-Glastürkühlschrank „Liebherr“ (ca. 330 Liter) mit verstellbaren Zwischenrosten.
  • 1 Stück hochwertiger Tiefkühlschrank unterbaut unter Fronttheke
  • Beleuchtung mit HALOGEN Spotsystem kundenseitig inkl. Hinterleuchtung des innenliegenden Werbedisplays

Zubehör

  • beleuchtetes Dachdisplay
  • Wind- und Wetterschutz, Schiebescheiben (Echtglas) an Bug- und Heck
  • Fahrzeugbeklebung nach Kundenwunsch

Bitte beachten Sie

Die Snackeinheit unterhalb der Ablufthaube kann je nach Kundenwunsch bestückt werden – hierfür eignen sich u.a. Bratplatte, Bain-Marie, Friteuse, Kochfeld

Strom & Beleuchtung

Stromversorgung

  • 230 Volt Elektro Grundinstallation nach VDE 0100

Beleuchtung

  • LED-Beleuchtung mit verstellbaren Strahlern (thekenseitig)
  • Beleuchtung mit mit Langfeldleuchten (Leuchtstoffröhren) hinter dem beleuchteten Innendisplay

Techn. Daten

Verkaufsaufbau

  • langlebiges GFK-Polyester außen
  • innen mit GELCOAT-Oberflächenvergütung
  • Alu Einfass- und Rahmenprofile, pulverbeschichtet
  • Isolation durch hochwertigen PU-Hartschaum
  • 3 Verkaufsklappen – eine in Fahrtrichtung rechts sowie Heck- und Bugklappe. Am Bug und Heck können zwei Verzehrtische flexibel angebracht werden.

Masse & Gewicht

Masse innen (LxBxH) in cm: ca. 334 x 240 x 231
Masse aussen (LxBxH) in cm: ca. 505 x 252 x 303 fahrbereit
Aufstellmass: ca. 635 x 365 x 303 (betriebsbereit mit geöffneter Verkaufsklappe)
Gesamtgewicht: 1.600 kg (ZGG)
Zuladung: ca. 200 kg
Grundriss
RETROLINER RL 340 Fish'n'Chips
Video
Diese Webseite verwendet Cookies. Durch die Nutzung der Webseite stimmen Sie der Verwendung von Cookies zu. Datenschutzinformationen