RETROLINER RL 340 Midi-Snack

Eis ist an den heißen Sommertagen einer der lukrativsten Umsatzmöglichkeiten und seit Jahrzehnten fest etabliert.

Durch die Verkehrsberuhigung der Innenstädte und durch wirtschaftliche Einflüsse bleiben aber oftmals die Umsätze aus und es ist auch bei bestehenden Eis-Cafés ein Umsatz- und somit Ertragsrückgang zu verzeichnen.

Die Verkaufsanhängerserie der RETROLINER RL 340 GELATI-BAR verbinden professionelle und durchdachte Inneneinrichtung mit optisch attraktiver und auffallender Aussenwirkung. Dieser Verkaufswagen ist Imageträger für bestehende Eis-Cafés, Eventküche bei Veranstaltungen, mobile Filiale, zweites Standbein und professionelles Café auf Rädern z.B. am Badesee oder im Wohngebiet nutzbar. Der Werbeeffekt für den bestehenden Gastronomiebetrieb ist enorm, die Kosten hierfür gering. Start-Up Unternehmen schaffen mit dem RETROLINER eine solide Basis für ein gut laufendes Geschäft. Die RETROLINER RL 340 GELATI-BAR eignet sich ideal für den Verkauf von Kaffee, Cappuccino, Latte Macchiato, Espresso, Milch- und Frucht-Shakes, Tee sowie Panini, Waffeln, Donuts o.ä.

RETROLINER RL 340 Midi-Snack

Für folgende Produktkategorien geeignet

Produktkategorie Imbiss
Produktkategorie Vegan

Mehr Informationen

Ausstattung
Strom & Beleuchtung
Techn. Daten
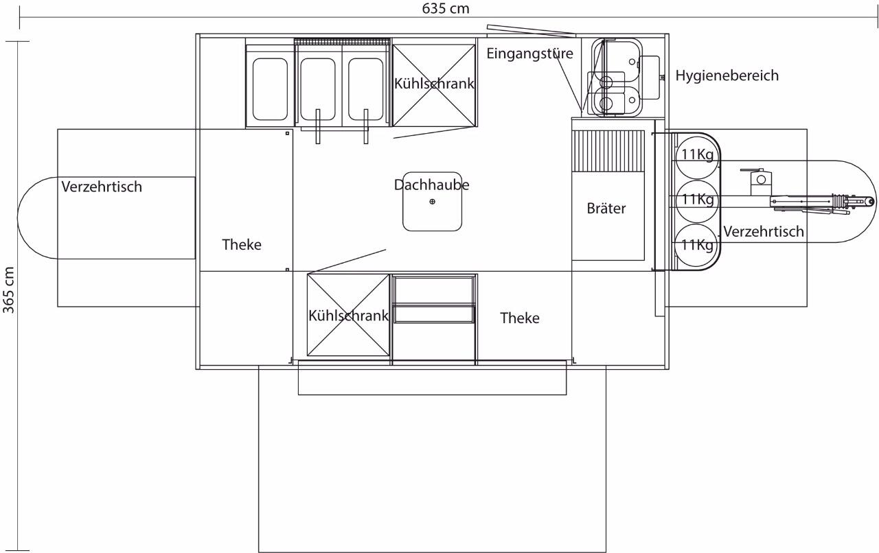
Grundriss
Video
Ausstattung

Ausstattung

  • Unterbau-Gasbackofen zum aufbacken oder erwärmen von Snacks(Serie).
  • Doppelbecken Gasfriteuse
  • Warmwasserbad (Bainmarie) gasbeheizt in 1/1 Gastronorm
  • Edelstahl Ablufthaube in Kaminform mit Beleuchtung
  • Edelstahl Gas-Kombibräter im Heck, 3 flammig mit Bräter und Rost
  • Designer-Glastürkühlschrank “ Liebherr“ mit verstellbaren Zwischenrosten ca. 330 Liter
  • hochwertige Designer-Kühlschrank mit Edelstahlfront ca. 180 Liter mit verstellbaren Zwischenrosten
  • Hygienebereich mit Edelstahl-Doppelspüle und Warmwasserboiler
  • beleuchtetes und hochklappbares Innendisplay
  • flexibel einsetzbare Verzehrtische an Bug und Heck
  • Kassenschublade
  • Gasflaschenschrank für 3 x 11 kg

Zubehör

  • beleuchtetes Dachdisplay
  • Wind- und Wetterschutz, Schiebescheiben (Echtglas) an Bug- und Heck
  • Fahrzeugbeklebung nach Kundenwunsch

Bitte beachten Sie:

Die Snackeinheit unterhalb der Ablufthaube kann je nach Kundenwunsch bestückt werden – hierfür eignen sich u.a. Bratplatte, Bain-Marie, Friteuse, Kochfeld

Strom & Beleuchtung

Stromversorgung

  • 230 Volt Elektro Grundinstallation nach VDE 0100

Beleuchtung (optional wählbar)

  • LED-Beleuchtung mit verstellbaren Strahlern
  • Beleuchtung mit mit Langfeldleuchten (Leuchtstoffröhren)
  • Gasentladungsstrahler mit verschiedenen Lichtfiltern
Techn. Daten

Verkaufsaufbau

  • langlebiges GFK-Polyester außen
  • innen mit GELCOAT-Oberflächenvergütung
  • Alu Einfass- und Rahmenprofile, pulverbeschichtet
  • Isolation durch hochwertigen PU-Hartschaum
  • 3 Verkaufsklappen – eine in Fahrtrichtung rechts sowie Heck- und Bugklappe. Am Bug und Heck können zwei Verzehrtische flexibel angebracht werden.

Masse & Gewicht

Masse innen (LxBxH) in cm: ca. 334 x 240 x 231
Masse aussen (LxBxH) in cm: ca. 485 x 252 x 290 fahrbereit
Aufstellmass: 615 x 365 x 290 (betriebsbereit mit geöffneter Verkaufsklappe)
Gesamtgewicht: 1.600 kg (ZGG)
Zuladung: ca. 200 kg
Grundriss
RETROLINER RL 340 Midi-Snack
Video
Diese Webseite verwendet Cookies. Durch die Nutzung der Webseite stimmen Sie der Verwendung von Cookies zu. Datenschutzinformationen