RETROLINER RL 340 Pommes and Snacks

Imbisswagen für den Verkaufs von Pommes und heißen Snacks

Das Snack-/Cateringfahrzeug besticht durch auffallende Form und attraktive Optik. Der Imbisswagen RETROLINER RL 340 POMMES AND SNACKS verbindet professionelle und durchdachte Inneneinrichtung mit auffallender und anziehender Aussenwirkung. Der RETROLINER Verkaufsanhänger ist eine komplett ausgestattete und professionelle Snackeinheit für den mobilen Verkauf von Pommes und Beilagen. Besonders auf Veranlstaltungen aller Art werden Sie mit dem RETROLINER bei Ihrer Kundschaft einen bleibenden Eindruck hinterlasssen. Wochenmärkte, saisonale Standplätze in Touristengebieten sowie Messe- oder Eventeinsätze auf Konzerten oder Großveranstaltungen meistert der RETROLINER als Verkaufs- und Promotionlösung mit Bravour.

Der Werbeeffekt auf Veranstaltungen ist enorm, die Kosten hierfür gering. Dieser einzigartige Verkaufswagen zeichnet sich durch die hochwertige Gastro-Geräte-Ausstattung mit Doppel-Friteuse, Bain-Marie, Kühlschrank und Profidunstabzugshaube aus.

Der RETROLINER RL 340 POMMES AND SNACKS eignet sich ideal für den Verkauf von frischen Pommes mit heißem Grillgut wie bspw. Chickenwings uvm.

RETROLINER RL 340 Pommes and Snacks

Für folgende Produktkategorien geeignet

Produktkategorie Imbiss
Produktkategorie Vegan

Mehr Informationen

Ausstattung
Strom & Beleuchtung
Techn. Daten
Grundriss
Video
Ausstattung

Ausstattung

  • 1 Stück Spezial Hochleistungs-Gasfriteuse mit Doppelbecken
  • 1 Stück Fritten-Bevorratungssystem oberhalb Friteuse
  • 1 Stück Warmwasserbad (Bain-Marie) gasbeheizt in 1/1 Gastronorm
  • 1 Stück Hochleistungs-Abzug (Abzugshaube) mit Drehzahlsteuerung
  • 1 Stück hochwertiger Designer-Glastürkühlschrank „Liebherr“ mit verstellbaren Zwischenrosten. ca. 330 Liter
  • Beleuchtung mit HALOGEN Spotsystem kundenseitig inkl. Hinterleuchtung des Innenliegenden Werbedisplays
  • Gasflaschenschrank im New-Retro Design für 3 x 11 kg Gasflaschen

Zubehör

  • beleuchtetes Dachdisplay
  • Wind- und Wetterschutz, Schiebescheiben (Echtglas) an Bug- und Heck
  • Fahrzeugbeklebung nach Kundenwunsch


Bitte beachten Sie

Die Snackeinheit unterhalb der Ablufthaube kann je nach Kundenwunsch bestückt werden – hierfür eignen sich u.a. Bratplatte, Bain-Marie, Friteuse, Kochfeld

Strom & Beleuchtung

Stromversorgung

  • 230 Volt Elektro Grundinstallation nach VDE 0100

Beleuchtung

  • LED bzw. HALOGEN Beleuchtung mit verstellbaren Strahlern (optional wählbar)
  • Beleuchtung mit mit Langfeldleuchten (Leuchtstoffröhren)
Techn. Daten

Verkaufsaufbau

langlebiges GFK-Polyester außen

innen mit GELCOAT-Oberflächenvergütung

Alu Einfass- und Rahmenprofile, pulverbeschichtet

Isolation durch hochwertigen PU-Hartschaum

3 Verkaufsklappen – eine in Fahrtrichtung rechts sowie Heck- und Bugklappe. Am Bug und Heck können zwei Verzehrtische flexibel angebracht werden.

Masse & Gewicht

Masse innen (LxBxH) in cm: ca. 334 x 240 x 231
Masse aussen (LxBxH) in cm: ca. 505 x 250 x 303 fahrbereit
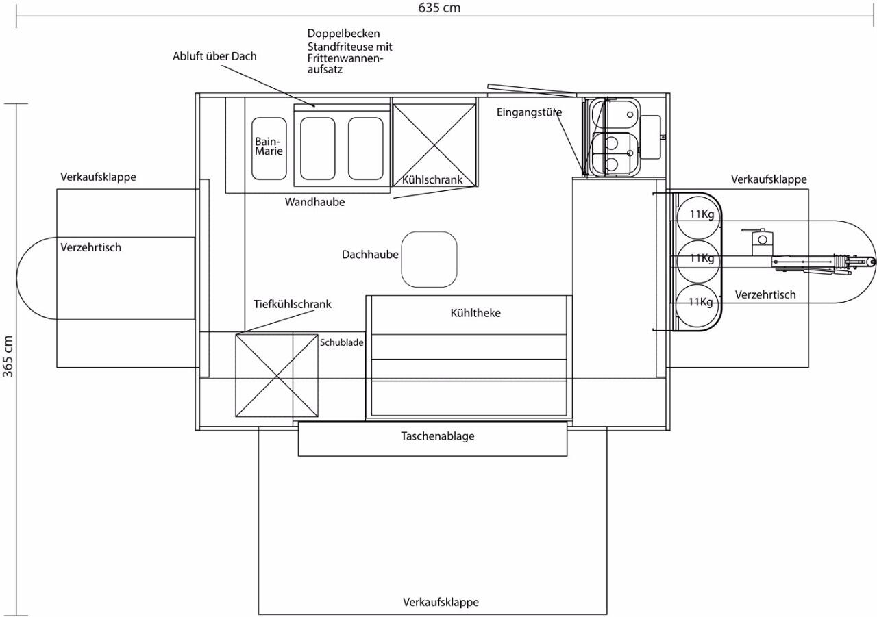
Aufstellmass: ca. 635 x 365 x 303 (betriebsbereit mit geöffneter Verkaufsklappe)
Gesamtgewicht: 1.600 kg (ZGG)
Zuladung: ca. 100 kg
Grundriss
RETROLINER RL 340 Pizza-Bar
Video
Diese Webseite verwendet Cookies. Durch die Nutzung der Webseite stimmen Sie der Verwendung von Cookies zu. Datenschutzinformationen