RETROLINER RL 340 Gelati

Eis ist an den heißen Sommertagen einer der lukrativsten Umsatzmöglichkeiten und seit Jahrzehnten fest etabliert.

Durch die Verkehrsberuhigung der Innenstädte und durch wirtschaftliche Einflüsse bleiben aber oftmals die Umsätze aus und es ist auch bei bestehenden Eis-Cafés ein Umsatz- und somit Ertragsrückgang zu verzeichnen.

Die Verkaufsanhängerserie der RETROLINER RL 340 GELATI-BAR verbinden professionelle und durchdachte Inneneinrichtung mit optisch attraktiver und auffallender Aussenwirkung. Dieser Verkaufswagen ist Imageträger für bestehende Eis-Cafés, Eventküche bei Veranstaltungen, mobile Filiale, zweites Standbein und professionelles Café auf Rädern z.B. am Badesee oder im Wohngebiet nutzbar. Der Werbeeffekt für den bestehenden Gastronomiebetrieb ist enorm, die Kosten hierfür gering. Start-Up Unternehmen schaffen mit dem RETROLINER eine solide Basis für ein gut laufendes Geschäft. Die RETROLINER RL 340 GELATI-BAR eignet sich ideal für den Verkauf von Kaffee, Cappuccino, Latte Macchiato, Espresso, Milch- und Frucht-Shakes, Tee sowie Panini, Waffeln, Donuts o.ä.

RETROLINER RL 340 Gelati

Für folgende Produktkategorien geeignet

Produktkategorie Ice cold

Mehr Informationen

Ausstattung
Strom&Beleuchtung
Techn. Daten
Grundriss
Video
Ausstattung

Stromversorgung

  • 230 Volt Elektro Grundinstallation nach VDE 0100

Beleuchtung 

  • LED bzw- HALOGEN-Beleuchtung mit verstellbaren Strahlern (optional wählbar)
  • Beleuchtung mit Langfeldleuchten (Leuchtstoffröhren)
Strom&Beleuchtung

Stromversorgung

  • 230 Volt Elektro Grundinstallation nach VDE 0100

Beleuchtung (optional wählbar)

  • Beleuchtung mit mit Langfeldleuchten (Leuchtstoffröhren) hinter Innendisplay
  • Gasentladungsstrahler mit Lichtfilter
Techn. Daten

Verkaufsaufbau

  • langlebiges GFK-Polyester außen
  • innen mit GELCOAT-Oberflächenvergütung
  • Alu Einfass- und Rahmenprofile, pulverbeschichtet
  • Isolation durch hochwertigen PU-Hartschaum
  • 3 Verkaufsklappen – eine in Fahrtrichtung rechts sowie Heck- und Bugklappe. Am Bug und Heck können zwei Verzehrtische flexibel angebracht werden.

Masse & Gewicht

Masse innen (LxBxH) in cm: ca. 334 x 240 x 231
Masse aussen (LxBxH) in cm: ca. 485 x 252 x 290 fahrbereit
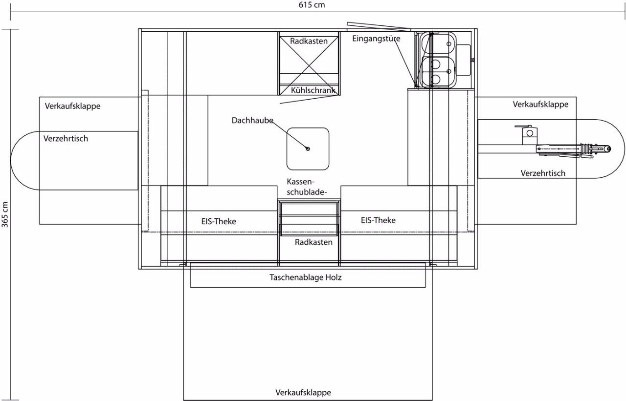
Aufstellmass: 615 x 365 x 290 (betriebsbereit mit geöffneter Verkaufsklappe)
Gesamtgewicht: 1.600 kg (ZGG)
Zuladung: ca. 200 kg
Grundriss
RETROLINER RL 340 Gelati
Video
Diese Webseite verwendet Cookies. Durch die Nutzung der Webseite stimmen Sie der Verwendung von Cookies zu. Datenschutzinformationen